Student Project
Buy Refurbish Refinance
I'm mentoring Khaja on this property project in Willesden, London, where he purchased a one-bedroom flat. We transformed it into a two-bedroom flat, refinanced it, and successfully rented it out. The project made a profit of £47,500.
Apply for Mentorship
About the Investor
Khaja Mohammed
Occupation:
Restaurant Owner
Past Property Experience:
None
Location:
North London
Floor Plans
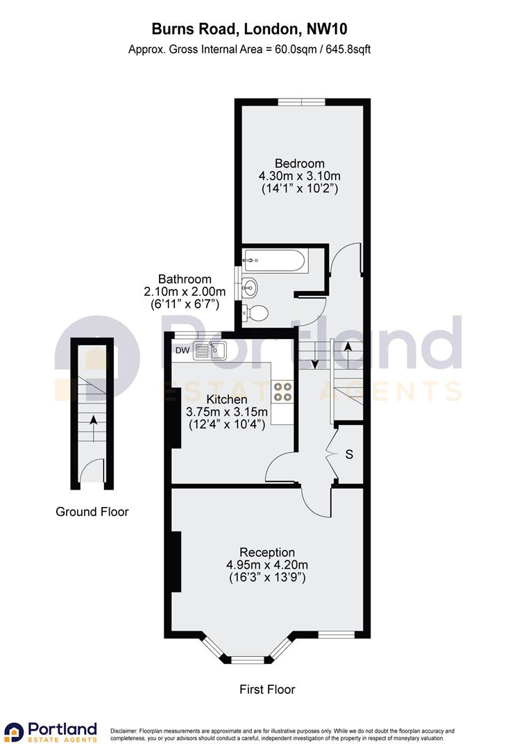
We moved the kitchen into the living room to create an open plan living room and we converted the original kitchen into the second bedroom, creating a two-bedroom flat.

Before

After
Before Pictures
After Pictures
Financials
Purchase Price:
£
302500
Auction Fees:
£
Sold Price:
£
Refurb:
£
38000
STDL:
£
9000
Legals
£
5000
Finance:
£
23000
New Valuation:
£
425000
Profit:
£
47500
Rent:
£
Mortgage:
£
Monthly Cashflow:
£